План розбудови Вінниці. Котеджі біля Стрижавки та нове житло на ВПЗ
- Міські архітектори розробили плани, як розбудувати північні райони Вінниці
- Зокрема, звести новий житловий квартал навпроти Підшипникового заводу та котеджне містечко на неподалік Стрижавки.
- Маєте зауваження або пропозиції? Думки вінничан про нову забудову очікують на громадських обговореннях
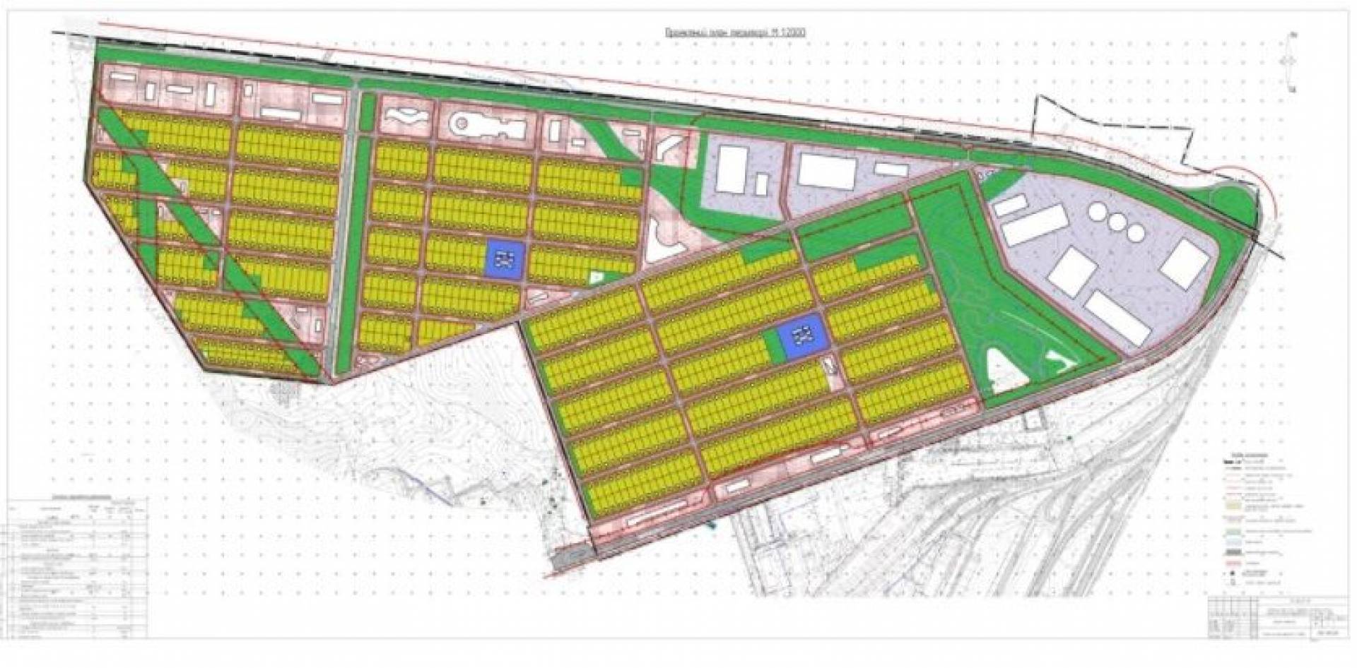
Від сьогодні, 2 лютого, у мерії оголосили одразу два громадських обговореннях. Вони стосуються розвитку північних околиць Вінниці: розбудова мікрорайону «ВПЗ» та новоприєднаних територій, які раніше належали Стрижавській сільській громаді. Про це написали на сайті Вінницької міськради.
У міському департаменті архітектури показали якими вони можуть стати.
«Нью-ГПЗ»
Зокрема, за оновленим генеральним планом розбудови мікрорайону ВПЗ планують звести житлові багатоповерхівки та соціальну інфраструктуру.
- Сім житлових десятиповерхівок. У них мешкатимуть понад чотири тисячі людей
- Два наземних паркінги (290 і 250 місць), один підземний. Та ще більше ніж 500 парко місць на узбіччях доріг і прибудинкових територіях
- Два торгових центри, висотою чотири поверхи
- Дві школи на 1859 учнів
- Один дитсадок на 240 дошкільнят
- Спортивні майданчики, зони для відпочинку, торгові площі тощо.
Це все розмістять на території площею 45,7 гектара. А хто будуватиме?

Питаємо, коли зведуть житловий квартал на ВПЗ?
— Складно сказати. У 90-ті там хотів побудувати житло Підшипниковий завод, але цього так і не сталося. Новий генплан є планом на майбутні роки. Його втілення залежатиме від бажання інвесторів вкладати сюди кошти. Крім житла потрібно звести в тому районі каналізаційну насосну станцію, нову транспортну розв'язку, інші важливі інфраструктурні об'єкти. І на перспективу дитячі садки та школи, які також обслуговуватимуть мешканців новоприєднаних територій від Стрижавки. Це землі поблизу об’їзної дороги, — розказав Рекута.
Про мікрорайон Підшипникового заводу є матеріал: «Тут краще, коли діти маленькі». Життя навколо підшипникового заводу.
Котеджне містечко поблизу Стрижавки
На громадське обговорення висунули й детальний план забудови (1-а черга) новоприєднаних територій Вінниці, які раніше були в складі Стрижавки. Тут розташують невеликі приватні будинки, облаштують вулиці, заасфальтовані дороги та велодоріжки. За генпланом тут мають звести дитсадки та амбулаторію. Загальна площа під забудову — 241,11 гектара.
Громадське обговорення триватиме протягом одного місяця — до 2 березня. Пропозиції та зауваження до цих планів можете надіслати до міського департаменту правової політики за адресою: Вінниця, вулиця Соборна, 59, кабінет №710, тел. 59-51-59, 59-51-55. Також у департаменті можна ознайомитися із матеріалами й отримати додаткову інформацію.
Слідкуйте за новинами Вінниці у Telegram.
-
лалкаШо не проект, - то шидевер, *лять. Слава проектантам управління архітектури і їх йобаному очільнику! Я вас обожнюю, свинота. -
ДедВсе заводы порезать а место них жилье а работать будем в Полше -
Онищук ИринаЛучше бы застроили Немировскую трассу...Кроме Гроша на ул.Чехова нет больших магазинов.С районов далеко добераться до ул.Чехова.....вот если бы был магазин немного ближе......,в районе окружного моста по Немировской......было бы удобнее.
Олексій reply Онищук ИринаЯкщо там вигідно було, вони б там як гриби повиростали. -
Masha Altuhova''Котеджне містечко поблизу Стрижавки" , а останнє фото з проектом біля мікрорайону Десна , навіть колії видно ))